いい宿かどうか、じゃない。
あなたに合う宿かどうかを、建築で考える。
宿の基本情報
- 宿名:VILLA YAHACHI GARDEN
- タイプ:一棟貸切。
- 食事:グランピング形式
- 場所:愛知県 田原市(渥美半島)/〒441-3501 愛知県田原市高松町弥八島50
- 立地:部屋から海が見える。
- 私たちの滞在条件:夫婦+生後6ヶ月の子ども/春/晴天/車移動
- 私たちの部屋タイプ:SKY棟






結論:VILLA YAHACHI GARDENはどんな人に合う宿か
この宿が合う人
・カップル旅行
・夫婦旅行
・子連れ旅行
・友達同士の旅行
・広い客室で、のびのび過ごしたい人。
・他のお客さんに気にせず、自分たちだけの時間を過ごしたい人。
・子供が寝た後も、大人で楽しむ場所が欲しい人。
・「家のような動線・間取り」で滞在重視の旅がしたい人。
この宿は合わないかもしれない人
・新幹線や電車で旅行がしたい人
→伊良湖岬自体が車移動がメイン
・源泉掛け流しの温泉に入りたい人
→温泉は出ない。(でも、お風呂は最高)
・全て旅館の人にサービスしてもらいたい人
→1棟貸しのグランピング形式のため、自分たちで自由にやる形式
・完全バリアフリーの宿を探している人
→段差は少ないが、大きいホテルではないのでどうしても段差はある。
泊まって最初に感じたこと(体験の要約)
最高の景色でも「家に近い感覚」で過ごせた
チェックイン後すぐ落ち着けた
・1棟貸切で、自分達だけの空間にすぐ入れる。
・荷物を適当に置いても、広々としたゆったりできる場所がある。
・部屋から見える景色が、絶景でだれにもじゃまされない。
普通の宿とは違う、『自分たちだけ』『広々とした空間』
これで、チェックイン直後から気持ちが落ち着きました。
宿にありがちな
ゆっくりするまでの準備時間、ほとんどありません。
チェックインして、即、ゆっくりできるって幸せです。
ちょこ旅式|空間体験5軸評価
気を遣わずにいられたか(心理的余白度)★★★★★
- 音・視線を気にしなくて良い、一棟貸しの効果を最大限活かしている。
- 寝室とリビングの距離感が絶妙。
落ち着く場所があったか(居場所定着度)★★★★★
- お風呂が良かった。渥美半島のビーチの夜景最高。
- 部屋が広く、ソファーもある。申し分なし。

体が楽だったか(身体負荷の少なさ)★★★★☆
- 宿としては一切文句なし。
- ただ、立地で1点減点。兎に角高速を降りてからの運転が長かった。
外が心地よかったか(外部関係の心地よさ)★★★★☆
- 海との距離感が最高。自分だけの渥美半島の景色。

- 庭は最低限。(全く問題はなし。)
暮らしに活かせそうか(暮らし転用度)★★★★☆
- 家づくりで真似したい点→動線の明快さと、リビングと個別の部屋の距離感
- 設備がかなり贅沢なため、工事費削減の勉強には向かないかも。

建築視点で見た「楽だった理由」
動線の整理が上手かつ贅沢。
寝室とリビングが程よい距離。
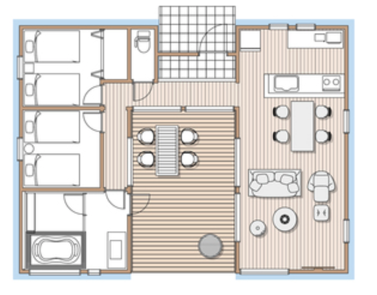
この宿のすごいところは、寝室とリビングが程よく離れているところ。
・リビングの灯りは、寝室に届かない。
→寝たい人は寝れるし、他の人は起きていられる。
・寝室で子供が泣いたら、すぐ駆けつけられる。
★誰かの生活リズムに合わせる必要がない。
★子供の寝かしつけ後に、親も楽しめる。
最高すぎます。
※因みに、この間取りは全て共通ではありません。添付は『SKY』という部屋です。

移動の少なさ
宿で疲れるかどうかは、
サービス量よりも移動量で決まると感じています。
・部屋と水回りが近い
・段差や階段が少ない。
・目的ごとに、他の客がいる共用部を通らなくていい。
VILLA YAHACHI GARDENでは、
生活に必要な動きが、最短距離で完結していました。
結果として、
「何もしていないのに疲れない」
そんな状態で滞在できたと思います。
「何もしなくていい時間」が用意されていた
周気を張る瞬間が少なかった
・触っていいのか迷う家具がない。
・音を立てても周りが気にならない。
・子どもの動きに神経を使う必要がない。
VILLA YAHACHI GARDENでは、
“遠慮”が必要にない宿だった。
これは雰囲気の問題というより、
生活動線に近いスケール感と、行動が想像しやすい間取りのおかげだと感じます。
広い空間の中に、外・中関係なく、ゆったりできる場所が用意されており、
『居場所の強制』が全くなかったことも、素敵でした。
泊まって気づいた、渥美半島旅行の優先順位
優先度が高かったもの
宿の行動量が少ないこと
部屋間の移動が少なく、
次に何をするか考えなくていい。
その積み重ねが、滞在の楽さにつながっていました。
日中の移動距離は長めなので、宿は短く行きたい。
宿で気を遣わずに過ごせること
これはどこの旅行でも気にしたいところ。
一棟貸しという形式以上に、
音や動きを止めなくていい状態が大きかった。
無意識の緊張が、ほとんどありません。
居場所の選択肢があること
景色も綺麗な場所で、居場所が限定されるのは勿体無い。
室内だけで完結せず、
外ともつながる居場所がある。
「どこにいてもいい」余白がありました。
優先度が低かったもの
過剰な設備やサービス
使い切れない設備があるかどうかは、
満足度にはあまり関係ありませんでした。
過剰なサービスは距離感に迷うことも多く、
この宿のようなグランピング形式は、ちょうどよく感じます。
予定を埋める前提の旅
観光を詰める旅行先ではないです。
何もしない時間を許せるかどうか。
この宿、そしてこの旅行では、そこが大きな価値でした。
この優先順位は、人によって違う
にぎやかな宿が合う人もいます。
サービス重視の旅が楽な人もいます。
ここに書いたのは、
いい宿や旅の答えではなく、判断の材料です。
家づくりに活かせること
※ちょこ旅では、家づくりをされている方に、1棟貸しの宿への宿泊をお勧めしています。詳しくは

取り入れたいこと
- リビングと部屋の距離感がとても良い。
→テレビの配置を、一番寝室から遠ざけている。 - 外の景色の取り入れ方が絶妙。
→立地も、ビーチ側に建物が立たない立地を選んでいる。
→家づくりは、立地も大事。
取り入れるのに注意が必要なこと
- 建物の中にバルコニーを取り込んでいるのは注意。
→建築的には工事費があがる構成 - キッチン構成に注意。
→贅沢な構成になっている。本当にここまで必要が考える必要がある。
まとめ:VILLA YAHACHI GARDENは「がんばらなくていい宿」
VILLA YAHACHI GARDENは、
何か特別なことをさせてくる宿ではありません。
観光を詰め込まなくてもいい。
完璧に過ごそうとしなくてもいい。
静かにしなきゃ、と気を張らなくてもいい。
ただ、
体を置けば、自然と楽になる。
そんな空間が、最初から用意されています。
いい宿かどうか、ではなく。
今の自分たちに合うかどうか。
VILLA YAHACHI GARDENは、
そうやって宿を選びたい人に、
静かに寄り添ってくれる一棟貸しの宿でした。
▼ちょこ旅では、実際に泊まった中でおすすめしたい宿をまとめています。
準備、当記事のようなレビューも書いていきますので、ぜひ参考にしてください。



コメント